Skip to main content
Home
Toggle menu
  • About
  • Project and Expertise
    • Urban Planning
    • Environment Design
    • Architecture
  • Leadership
  • Awards and Accolades
  • Partners in Progress
  • News and Events
  • Contact
Architecture
Heritage Park at Makhel, Manipur
Heritage Park at Makhel, Manipur
GMR Goa International Airport Limited (GGIAL), Goa
GMR Airport Goa Master Plan
Thar Meadows, Residential Scheme near Jodhpur, Rajasthan
Thar Meadows, Residential Scheme, Jodhpur, Rajasthan, India
Sports Facility at KSKV Kachchh University, Bhuj, Gujarat
Sports Facility at KSKV Kachchh University, Bhuj, Gujarat
IIT Gandhinagar, Owner's Architect, Palaj, Gujarat
IIT Gandhinagar, Owner's Architect, Palaj, Gujarat
Master Plan for Jaiprakash University, Chapra, Bihar
Master Plan for Jaiprakash University, Chapra, Bihar
Master Plan for Amba Township, Ahmedabad, Gujarat
Master Plan for Amba Township, Ahmedabad, Gujarat
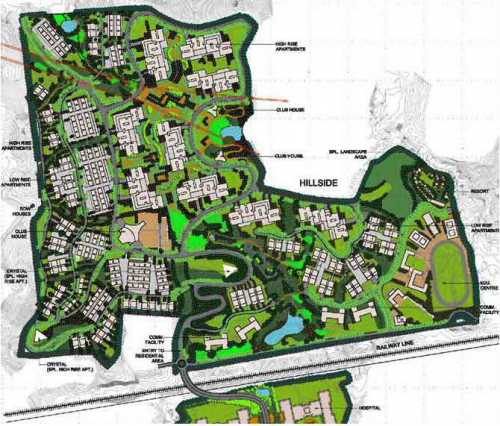
Integrated Township at Mangalore, Karnataka
Integrated Township at Mangalore, Karnataka
Multi-Level Parking at Silvassa, D&NH
Multi-Level Parking at Silvassa, D&NH
Roselabs Bioscience's Industry, Bavla, Gujarat
Roselabs Bioscience's Industry, Bavla, Gujarat
International Convention Centre at Rajgir, Bihar
International Convention Centre at Rajgir, Bihar
Master Plan for Avani Industrial Park, Vadodara, Gujarat
Master Plan for Avani Industrial Park, Vadodara, Gujarat
Crematorium, Silvassa, D&NH
Crematorium, Silvassa, D&NH
Environment Design for IST Campus, Sanand, Gujarat
Environment Design for IST Campus, Sanand, Gujarat
Indrashil University, Dholera, Gujarat
Indrashil University, Dholera, Gujarat
sfy39587stp18